生物質相變鍋爐熱水機組
山東祿禧新能源科技有限公司經過7年的研發攻關和推廣利用,擁有成熟的農作物秸稈供暖技術。祿禧專利技術真空結構生物質燃燒器和真空相變熱水機組等真正實現了農作物秸稈清潔燃燒、高 效換熱和循環利用,熱效率≥94%。

| 型號 | BVB-60 | BVB-120 | BVB-240 | BVB-360 | BVB-480 | BVB-600 | ||
| 連續輸出 104Cal/h | 60 | 120 | 240 | 360 | 480 | 600 | ||
| 采暖熱水 | 進出口溫度 ℃ | 55/70 | ||||||
| 設計流量 m³/h | 40 | 80 | 160 | 240 | 320 | 400 | ||
| 壓力損失 MPa | 0.08 | 0.08 | 0.08 | 0.08 | 0.08 | 0.08 | ||
| 接管口徑 mm | DN80 | DN150 | DN175 | DN250 | DN250 | DN300 | ||
| 衛生熱水 | 進出口溫度 ℃ | 20/65 | ||||||
| 設計流量 m³/h | 10 | 20 | 30 | 80 | 106 | 145 | ||
| 壓力損失 MPa | 0.08 | |||||||
| 接管口徑 mm | DN50 | DN80 | DN100 | DN125 | DN150 | DN200 | ||
| 使用壓力 Mpa | 0.8(可定制) | |||||||
| 生物質耗量 | 耗量 kg/h | 159.6 | 319.2 | 638 | 957.6 | 1215 | 1596 | |
| 排煙口徑 mm | 300×300 | 500×400 | 500×400 | 600×400 | 700×500 | 800×500 | ||
| 電氣功率kw | 4.5 | 8.5 | 14.5 | 18.5 | 20.5 | 20.5 | ||
| 外形尺寸 | 長 mm | 1870 | 4075 | 6500 | 7581 | 8910 | 11000 | |
| 寬 mm | 988 | 2725 | 3500 | 3500 | 3500 | 3500 | ||
| 高 mm | 2000 | 1798 | 4000 | 4300 | 4500 | 4500 | ||
| 運輸重量 Kg | 2500 | 8000 | 9100 | 14800 | 25000 | 27000 | ||

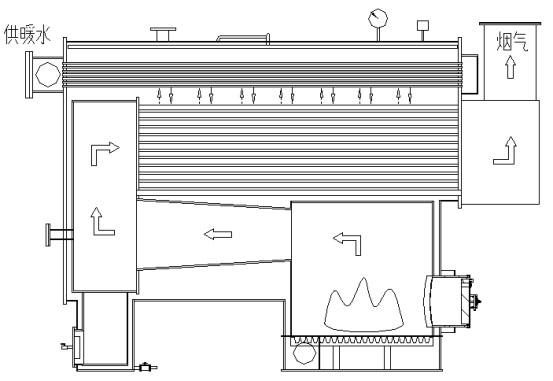
生物質相變鍋爐熱水機組是利用熱媒水的相變進行熱交換的,燃料燃燒釋放出的熱量被熱媒水吸收,當溫度上升至某真空狀態下的飽和溫度時,蒸發成飽和蒸汽,完成相變過程。凝結水流進蒸發室繼續吸熱,完成相變循環。
祿禧生物質真空相變鍋爐熱水機組獨特性:
我公司的生物質相變鍋爐熱水機組產品真正意義上把相變鍋爐相變技術應用到供暖領域,大大提高了機組的熱效率,而且使用旋轉式燃燒方式,燃料分散燃燒,爐內燃燒溫度降低,明顯緩解了爐內結焦及受熱面積灰等傳統生物質鍋爐難以解決的問題。
具體優點如下:
1、節能:燃燒器與生物質相變鍋爐熱水機組一體化設計,采用生物質相變鍋爐熱水機組技術,機組在相變狀態下運行,沸點低,汽化潛熱(凝結潛熱)換熱,有效地提高了熱效率,燃燒器內無耐火磚、耐火水泥等傳統的隔熱材料,直接參與相變換熱,換熱性能好,整體兩回程設計,尾部煙程安裝余熱回收裝置,提高了能源利用率。
2、旋轉式爐排設計,燃料分布在爐排周邊燃燒,增大了燃料的分布面積,而且貼近相變換熱的低溫區,明顯降低了燃燒溫度,減小了爐內結焦和受熱面的積灰,鍋爐運行更穩定。
3、燃料低溫燃燒大大降低了煙氣的排放指標。
4、機組負壓運行,可靠機組相變鍋爐運行,熱媒處于相變鍋爐狀態,不存在膨脹、爆炸的危險。爐體內儲有恒量的熱媒水,沒有干燒的危險。多重自動保護裝置,具有其它機組無法比擬的性。
5、免除了繁雜的報批手續:機組處于真空狀態下運行,免除了壓力窗口的報批,無需年審,操作工無需持證。
6、智能控制:觸摸屏顯示,虛擬按鍵、中文及圖形顯示系統工況、故障自診斷,多重故障報警系統。
7、生物質供暖系統真正實現了農作物秸稈清潔燃燒,排放符合超低排放要求,采用特有低氮燃燒方法,燃燒尾氣中氮氧化物含量低于200mg/m³,結渣少。